Tietoa
Kartta
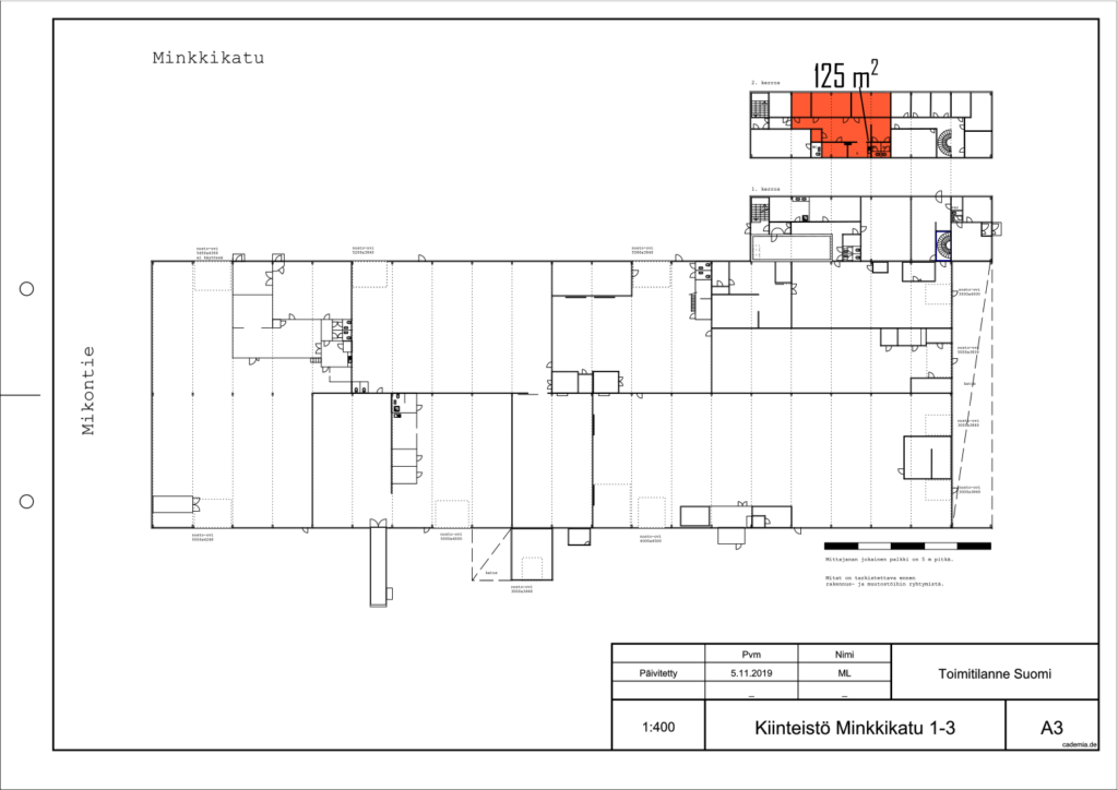
Kiinteistön toisessa kerroksessa toimistohuoneita, neuvottelutila, aula, keittiö ja wc:t. Tiloissa jäähdytys. Koneellinen ilmanvaihto.
Kuvaus
Yhteystiedot
Ota yhteyttä














