2026 - 2027
Tulossa uusi Mikonpelto II yritysalue
Tulossa uusi Mikonpelto II yritysalue Järvenpäähän Vanhan Lahdentien varteen.
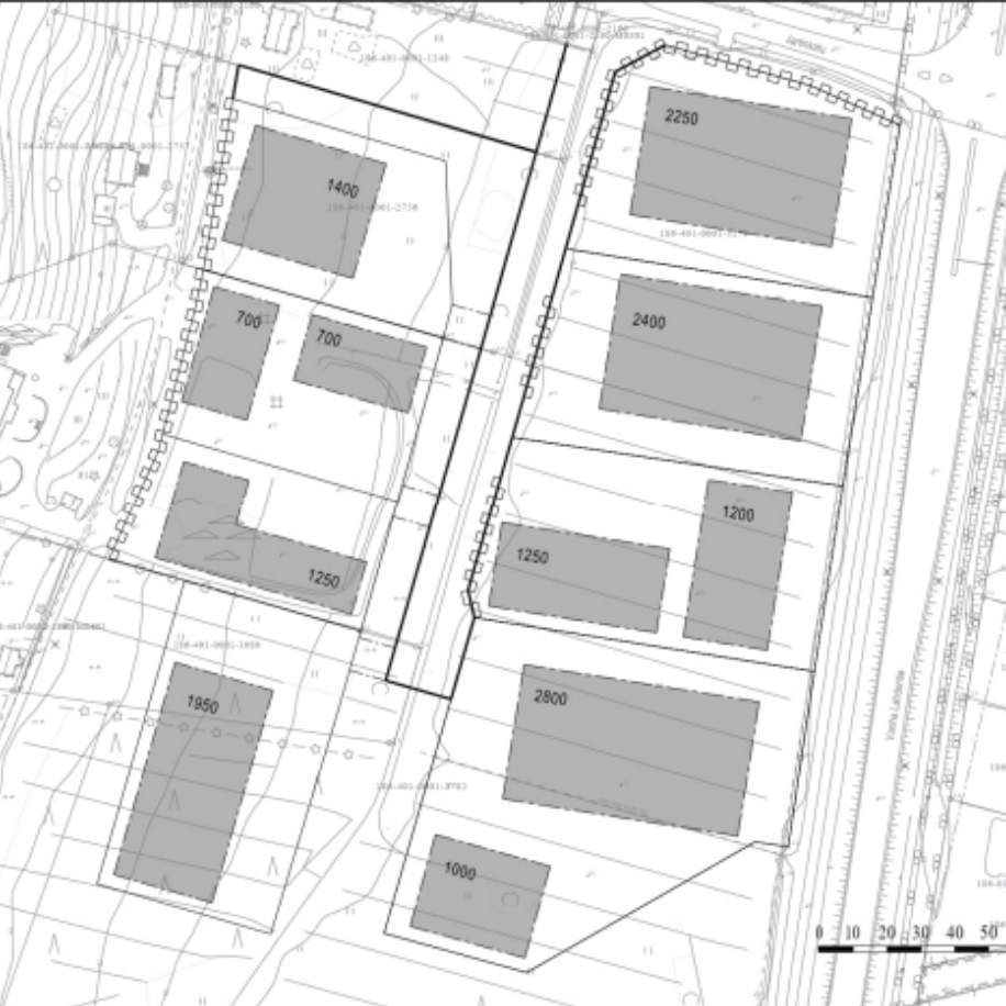
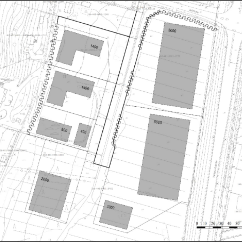
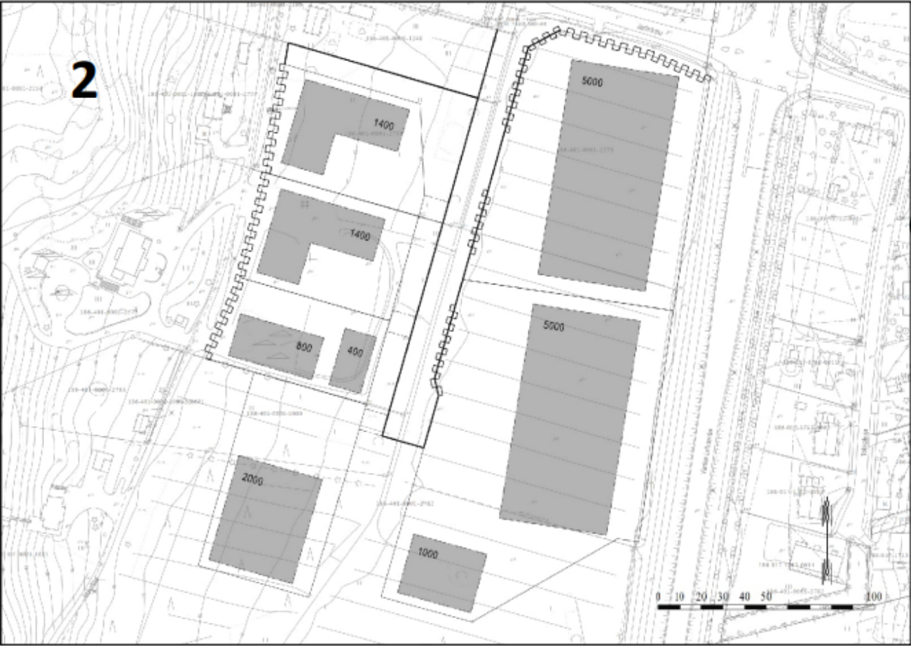
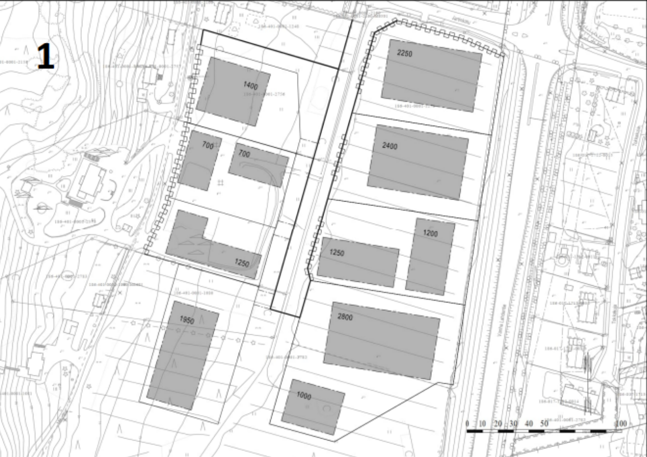
Kyseessä on toimitilarakennusten korttelialue (KTY-9), jonka pinta-ala on 4 ha ja rakennusoikeutta yhteensä 17 000 k-m2. Mikonpelto II vahvistaa Järvenpään yritystonttivarantoa ja samalla kaupunkiin saadaan uusia työpaikka-alueita.
Aikatauluja:
- Kaava saa lainvoiman vuoden 2026 aikana.
- Infran rakentaminen vuonna 2026 ja 2027
- Yritysalueen keskelle rakennetaan uusi Jartinkuja, jolta on liittymät kaikille Mikonpelto II yritystonteille.
- Yritystontteja pääsee rakentamaan arviolta vuonna 2028.
Lisätietoja kaavasta: https://www.jarvenpaa.fi/asuminen-ja-ymparisto/maankaytto-ja-kaavoitus/asemakaavoitus/vireilla-olevat-asemakaavat/mikonpelto-ii-asemakaava
Kiinnostuitko? Ota yhteyttä ja jutellaan lisää:
- yrityspalvelupäällikkö Susanna Aramo, puh. 040 315 3130, susanna.aramo@jarvenpaa.
fi - tonttipäällikkö Ville Paatsola, puh. 040 315 3446, ville.paatsola@
jarvenpaa.fi - maankäyttöjohtaja Juhana Hiironen, puh. 040 315 2447, juhana.hiironen@
jarvenpaa.fi




